特级黄色毛片 DMC型脈沖袋式倉頂除塵器-灰庫設備-氣力輸送,耐磨閥門,擺動閥,雙插闆閥-常州市隆金機械有限公司
·
 

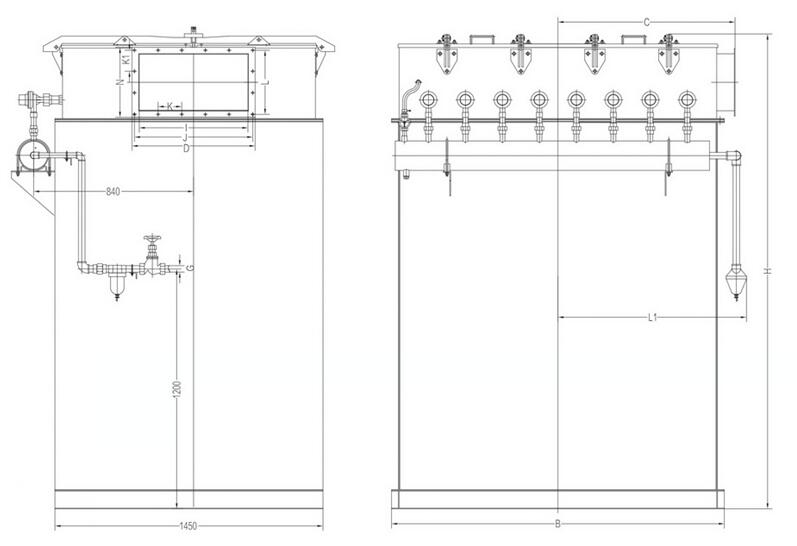
DMC型脈沖(chong)袋式倉頂(ding)除塵器

産(chan)品簡介
DMC型(xing)脈沖袋式(shi)倉頂除塵(chen)器适宜布(bu)置在各種(zhong)粉料貯存(cun)庫的頂👌部(bu),用于過濾(lü)含塵氣體(ti)。DMC型脈沖袋(dai)式倉頂除(chu)塵器主要(yao)技術參數(shu)見表。在選(xuan)型時應注(zhu)意入口粉(fen)塵濃🧑🏾‍🎄度,在(zai)技術性能(neng)上,透過濾(lü)袋
  • 産品(pin)描述



·